Form - 거푸집 수량산출표 작성 (처음사용자용)
실별 면적, 시스템동바리, 거푸집등등 산출표 작성하는 프로그램
Form : 산출근거를 DB파일기준으로 작성
FD : 산출근거를 속성블럭에 저장
FT : 속성블럭이나 엑셀에서 값을 가져와 산출리스트를 작성

요약
1단계 - 작업전 사전분류
2단계 - 거푸집 입력 (동일조건 객체별 선택하여 리스트 작성)
3단계 - 거푸집 출력 (표 그리기)
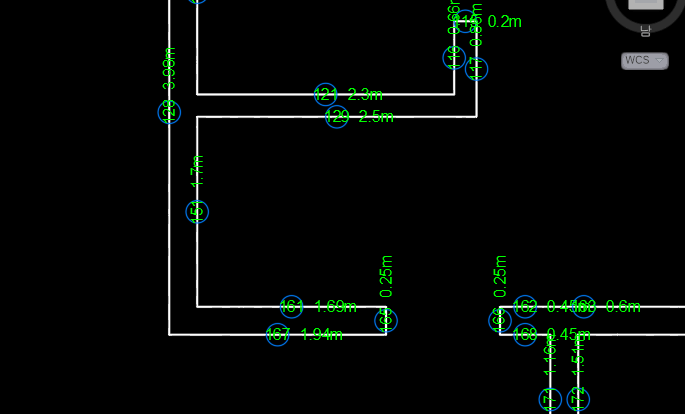
1. 동일조건의 객체별 분류
1. 사전작업 - 산출에 방해되는 객체를 삭제하거나 중복된 객체가 없도록 분류 (작업전)
- 사전분류로 동일한 옵션끼리 분류하는것은 중요합니다
- 하나씩 선택하면 시간이 오래걸리 효율이 떨어짐
- 높이가 동일하거나 면적객체 또는 기호가 같은 객체들끼리 분류

2. Form 객체 표시 및 표 그리기 시작
2.1 NEW (새파일 시작) - 벽(길이)

2.2 옵션확인
가) 문자높이 100정도 (되도록 작게 설정)
나) 자릿수 (되도록 높게 설정)
다) 반올림 설정
라) 레이어 설정
2.3 거푸집 입력 ( 객체의 기호 및 높이등 )

2.4 거푸집 추가 (객체선택 )
- 동일조건으로 분류된 객체들을 한번에 선택해서 "구분" 및 리스트 추가

- 객체방향으로 표기적용 (2023B2버전부터)

- 중복개체가 있을경우 RAY 표기 (길이가 다를경우 알수 없음)

- 면적객체 선택

2.5 FORM 실행 내용확인

2.6 수정
가) Excel 보내기 후 가져오기

- 수정후 저장없이 캐드에서 Excel 가져오기 (저장하면 파일이름이 변경되어 가져오지 못함)

나) 메모장 또는 1줄씩 수정
3. 거푸집 출력
- 산출근거 / 구분 표기에 따른 출력형태

'Lee lisp > Area & Cal' 카테고리의 다른 글
| FT - 길이 정보를 가진 블럭의 집계표 또는 엑셀보내기 (0) | 2024.02.19 |
|---|---|
| FD - 수량산출 속성블럭 작성 - 2024H5이후 (4) | 2024.02.19 |
| Form - 거푸집 수량산출표 작성 (V2025) -2025D2이후 (3) | 2024.02.19 |
| Form / FD - 경사 스라브 거푸집 산출 (2) | 2023.05.28 |
| 자동갱신(Reactor)이 되는 사칙연산 (2) | 2023.05.05 |



